Sold

Displaying: of 10

Agent Details

Barry France

Share

Prime development / investment opportunity

Sold

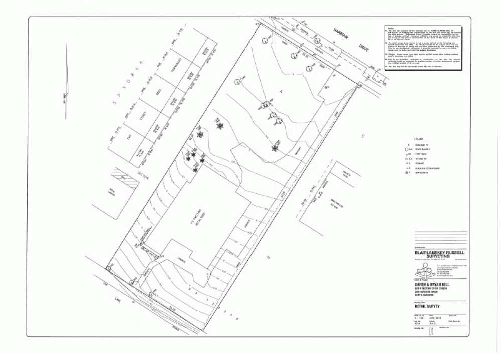
258 Harbour Drive, Coffs Harbour

4
2
1

Profile

This property presents you with a great opportunity to develop (stca) in a sought after location being easy walking distance to Coffs Harbour CBD, Coles Supermarket, Jetty Restaurant Strip and local primary & secondary schools. Public transport (bus stop) close to the front of the property and easy access to marina, university, health campus, airport and railway station.
North facing with dual road frontage providing access from Harbour Drive and a fully sealed rear lane.
A Detail Survey Plan has been completed for the 20 m x 50 m (approx.) site and there are near ready DA plans for 6 x 3-bedroom townhouses available. The estimated project feasibility indicates good returns for the astute investor.
The current home is leased at $375 PW.
Rates $3370 PA
Ring now for more information.

Features

15533525
Property ID
4
Bedrooms
2
Bathrooms
1
Garage
1012 sqm approx.
Land Size

Send Enquiry

Your Details
Your Enquiry
  1. Please describe how we can be of assistance to you.

  2.  

    Would you like to join our mail list?

Submit